House for sale with 4 bedrooms in Saffron Walden, Essex

Guide Price

£925,000 | Available

4 bedroom House for sale in Essex

Book a Viewing Request Details
or call 01799 520520
Share
Property Description

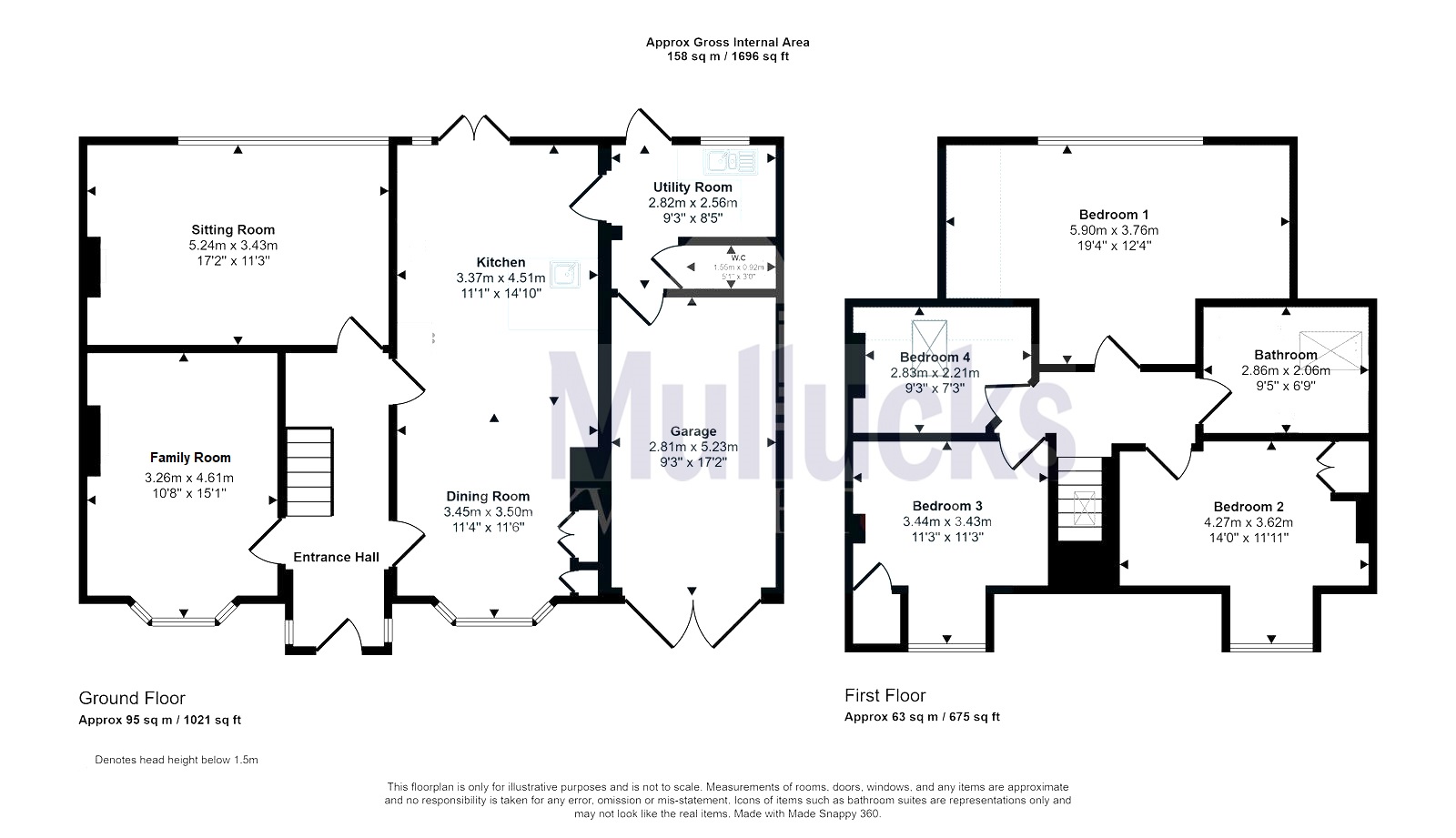
4 SPRINGHILL ROAD is a well proportioned detached house that has been subject to extending and modernisation in recent years. The property sits on a mature plot of approximately 0.14 of an acre with paved off-street parking to the front and an integral garage suitable for conversion to provide additional accommodation should that be required.

Accommodation comprises an entrance hallway with wood flooring leading to all reception rooms. A large kitchen/dining room runs front to back with bay window to the front aspect and French doors leading to the rear garden. The kitchen is fitted with a range of wall and base units incorporating a self-cleaning electric oven and high speed combination oven, an induction hob with extractor fan over, integrated dishwasher inset to an island unit with sink and composite granite worktops. There is a pleasant east facing dining area with a bay window and fitted kitchen cupboards. A large utility room benefits from a period style drying rack and a sink unit inset to base units with additional wall cupboards, space and plumbing for a washing machine, door to rear garden and adjacent is a cloakroom with WC and wash basin. A door from the utility room connects to the single garage.

To the left of the hallway there is a good sized family room with fireplace and bay window. To the rear of the house a large sitting room features an open fireplace and French doors lead to the mature rear garden. The first floor landing leads to the impressive master bedroom with vaulted ceiling and windows to the rear aspect. There are 3 further bedrooms; one currently used as a study and a large family bathroom with bath, separate shower unit, heated towel rail and Velux windows.

The west facing rear garden is mainly laid to lawn with mature trees and shrubs and a large floral border. There are fenced and hedgerow boundaries.

Additional Information
Tenure:
Freehold
Council Tax Band:
E
Standout Features
Mortgage calculator
years
%

Calculate Your Stamp Duty
£
Results
Stamp Duty To Pay:
Effective Rate:
Tax Band % Taxable Sum Tax
Standout Features