House for sale with 4 bedrooms in Bishop's Stortford, Hertfordshire

Guide Price

£700,000 | Available

4 bedroom House for sale in Hertfordshire

Book a Viewing Request Details
or call 01279 755400
Share
Property Description

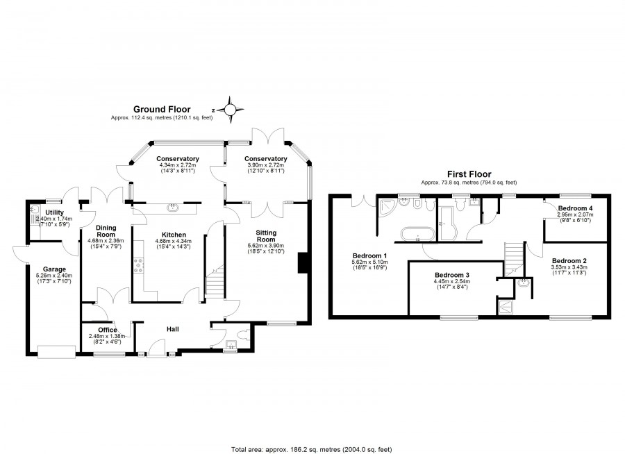
66 PENNINGTONS is a well presented and extended 4 bedroom detached family house situated in this sought-after cul-de-sac on the Thorley Park development, within close proximity of Manor Fields Primary School, Thorley's shopping facilities and the town centre. The property is offered with vacant possession.

The accommodation is arranged over two floors with a reception hallway and ground floor cloakroom, good sized sitting room leading through to the conservatory which, in turn links to a further conservatory along with a fitted kitchen. There is a separate dining room with a utility room and access to the garage and, from the hallway, there is access to the home office.

The first floor landing leads off to the four good sized bedrooms and the 3-piece family bathroom suite. Bedroom 2 benefits from an en suite shower room and the principal bedroom has a 5-piece en suite bathroom with a dressing area and French doors opening onto a Juliet balcony overlooking the rear garden.

EXTERNALLY, to the front of the property a block paved driveway provides parking for 5 vehicles with access to the garage with an up-and-over door. A gated side pedestrian access leads to the rear garden which extends to approximately 65ft to the furthest point with a timber decked area to the immediate rear of the garden, with the remainder mainly laid to lawn with an abundance of flower and shrub areas. There is external water and power connected. To the side of the property is a large garden store.

Additional Information
Tenure:
Freehold
Council Tax Band:
E
Standout Features
Mortgage calculator
years
%

Calculate Your Stamp Duty
£
Results
Stamp Duty To Pay:
Effective Rate:
Tax Band % Taxable Sum Tax
Standout Features