House for sale with 3 bedrooms in Wicken Bonhunt, Saffron Walden, Essex

Guide Price

£725,000 | Available

3 bedroom House for sale in Saffron Walden

Book a Viewing Request Details
or call 01799 520520
Share
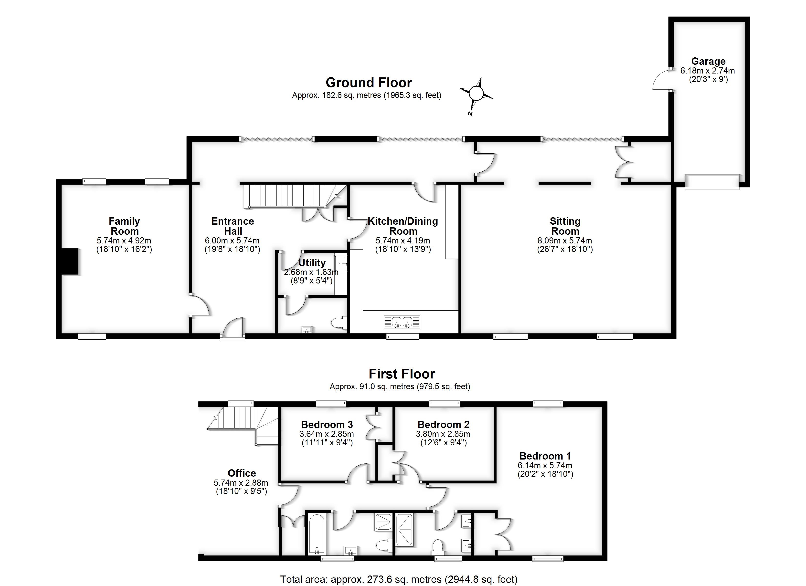
Property Description

Bonhunt Lodge was originally an agricultural barn adjoining Bonhunt House. The barn was converted by the present owners to a high standard and was originally used as a meeting venue and in 2011 consent was granted to convert the property into a house. The house was then used by a family member as a home for many years.

Bonhunt Lodge is a building of significant character with a most impressive entrance hallway with a vaulted ceiling, a family room with exposed brick and timber work, a well-equipped kitchen and adjoining utility room and the most spacious drawing room. An attractive glazed link runs along most of the back of the property with bi-folding doors out to the garden.

On the first floor, there are three bedrooms, a large landing which would make an excellent study and then two bath/shower rooms.

To the right of the barn there is an integral single garage, and behind the barn an area of lawn with a number of maturing trees. There is parking both in front and beside the barn for four/five vehicles.

AGENTS NOTE: The property is accessed via a timber field gates along a good farm track owned by the Quendon Estate. We understand that a remote controlled gate will be erected in agreement with the estate fairly shortly.

The barn is presently empty and therefore early vacant possession is available for anybody who wants to move quickly.

The adjoining property, Bonhunt House is on the market and is in the same ownership as Bonhunt Lodge.

Additional Information
Tenure:
Freehold
Council Tax Band:
F
Standout Features
Mortgage calculator
years
%

Calculate Your Stamp Duty
£
Results
Stamp Duty To Pay:
Effective Rate:
Tax Band % Taxable Sum Tax
Standout Features