House for sale with 2 bedrooms in Shalford, Braintree, Essex

Guide Price

£395,000 | Available

2 bedroom House for sale in Braintree

Book a Viewing Request Details
or call 01279 755400
Share
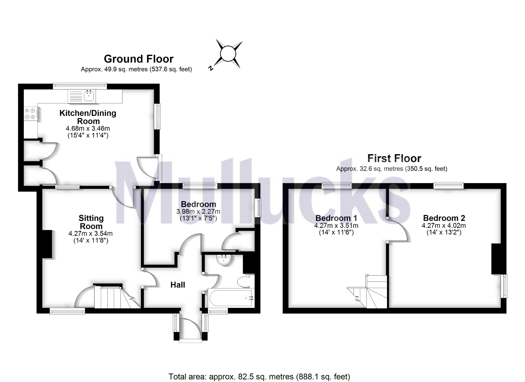
Property Description

Sleepy Hollow is located on the outskirts of Shalford which is located between Great Dunmow and Braintree town which has a mainline station into London Liverpool Street.

The cottage sits on a plot of approx. 0.9 of an acre and is accessed via quiet lane which also provides access to a bridleway and a footpath leading to the village of Shalford (less than a mile away), which features a well-stocked village store, church, and pub. The property is a two bedroom detached thatched cottage with an array of period features throughout including exposed timbers and floorboards. Has off-street parking to the side for two vehicles and a small brick built outbuilding.

Entering Sleepy Hollow is the entrance hall, to the right is the downstairs bathroom and then two receptions rooms with a working fireplace in the sitting room, and stairs rising to the first-floor landing. To the back of the house is the kitchen/dining room which is a newer extension and has an array of eye and base level units and space for white goods.

On the first floor there are two double bedrooms that are interlinked.

Externally, there is a cottage garden with a variety of perennial and spring bulbs and outbuildings. Beyond the fencing is a medieval meadow ringed by a mature Hawthorne hedge.

Agents Note: (1) The property is a probate sale and probate has been granted and is offered with vacant possession. (2) The thatched roof was replaced in 2016.

Additional Information
Tenure:
Freehold
Council Tax Band:
C
Standout Features
Mortgage calculator
years
%

Calculate Your Stamp Duty
£
Results
Stamp Duty To Pay:
Effective Rate:
Tax Band % Taxable Sum Tax
Standout Features