Bungalow Under Offer with 2 bedrooms in Old Harlow, Essex

£495,000 | Under Offer

2 bedroom Bungalow Under Offer

Book a Viewing Request Details
or call
Share
Property Description

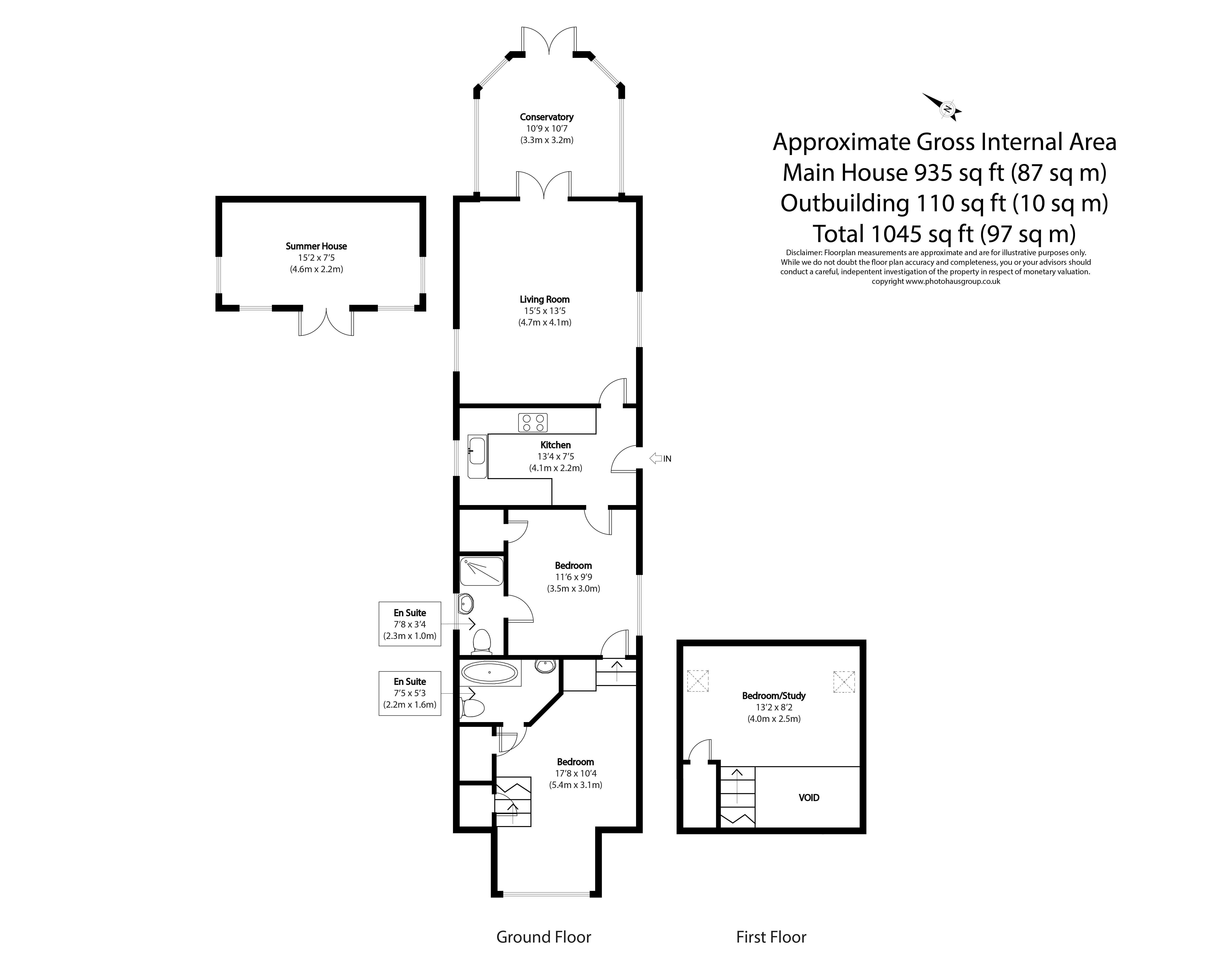
Shanti House is tucked away set off the main Hobbs Cross Road, located at the end of a private driveway. Only moments from Churchgate Street, with its village shop, and the popular Queens Head Pub.

This unique bungalow was designed and built by the previous owner in the grounds of the neighbouring property around 8 years ago.

From the moment you step inside the property you are met with the charm of the surrounding countryside, from the many picturesque windows.

The uniqueness of the property continues inside, as being beautifully presented with a modern design. With the main entrance taking you into the kitchen, this room acts a divide between the two ends of the house.

An impressive living room flows effortlessly into the conservatory, both are a great space for relaxing and taking in the views.

Stepping down from the kitchen, you enter one of the bedrooms, this is the second out of the two, this gives built in storage, with access to an En-suite shower room.

Continuing the flow of the property, the bedroom takes you in the main bedroom at the front of the property. This room is very versatile being split level with a good size mezzanine area, that ideally use as further bedroom space or home office. The current owners are currently using as bedroom space, the ground floor section, has a large storage cupboard along with en-suite bathroom.

To the rear is a mature garden, running along the side of the secluded landscape. The garden has access to a summer house, that offer power and internet, currently use as an office space. The grounds of the property do offer potential to extend out to the side (Subject To Planning).The grounds of the property do offer potential to extend out to the side (Subject To Planning).

The front is gated driveway parking for several vehicles.

A right of way is in place over the driveway of the neighbour’s property that leads you to the gate of Shanti House.

Additional Information
Council Tax Band:
A
Standout Features
Mortgage calculator
years
%

Calculate Your Stamp Duty
£
Results
Stamp Duty To Pay:
Effective Rate:
Tax Band % Taxable Sum Tax
Standout Features