Commercial property to let in Much Hadham SG10 6BU | Mullucks

£64,000 PA | Available

Shop to let in Much Hadham
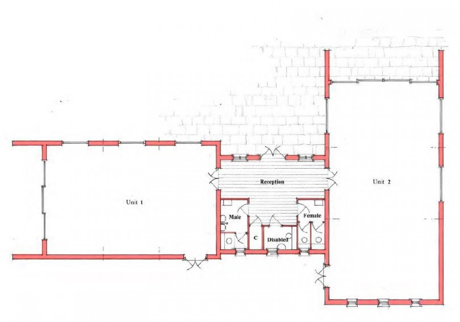
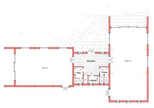
Total Size: 2500 SQ FT

Book a Viewing
or call 01279755900
Share
Property Description

Hopleys is a former Garden Centre and Café complex which is being redeveloped to create a prestigious development of 8 detached residential units and a single commercial unit with planning consent for use as a retail unit or daytime café/tea rooms.

The Commercial unit is set to the rear of the site surrounded by Historic Gardens, including a pond, which also provides 20 car parking spaces, and bin store.

The single storey building will provide approx 2500 sq ft in two open plan rooms connected by a reception hall where WCs will be located.