House to let with 5 bedrooms in Barnston, Dunmow, Essex

£3,500 PCM | Let Agreed

5 bedroom House to let in Dunmow

Book a Viewing
or call 01279 653067
Share
Property Description

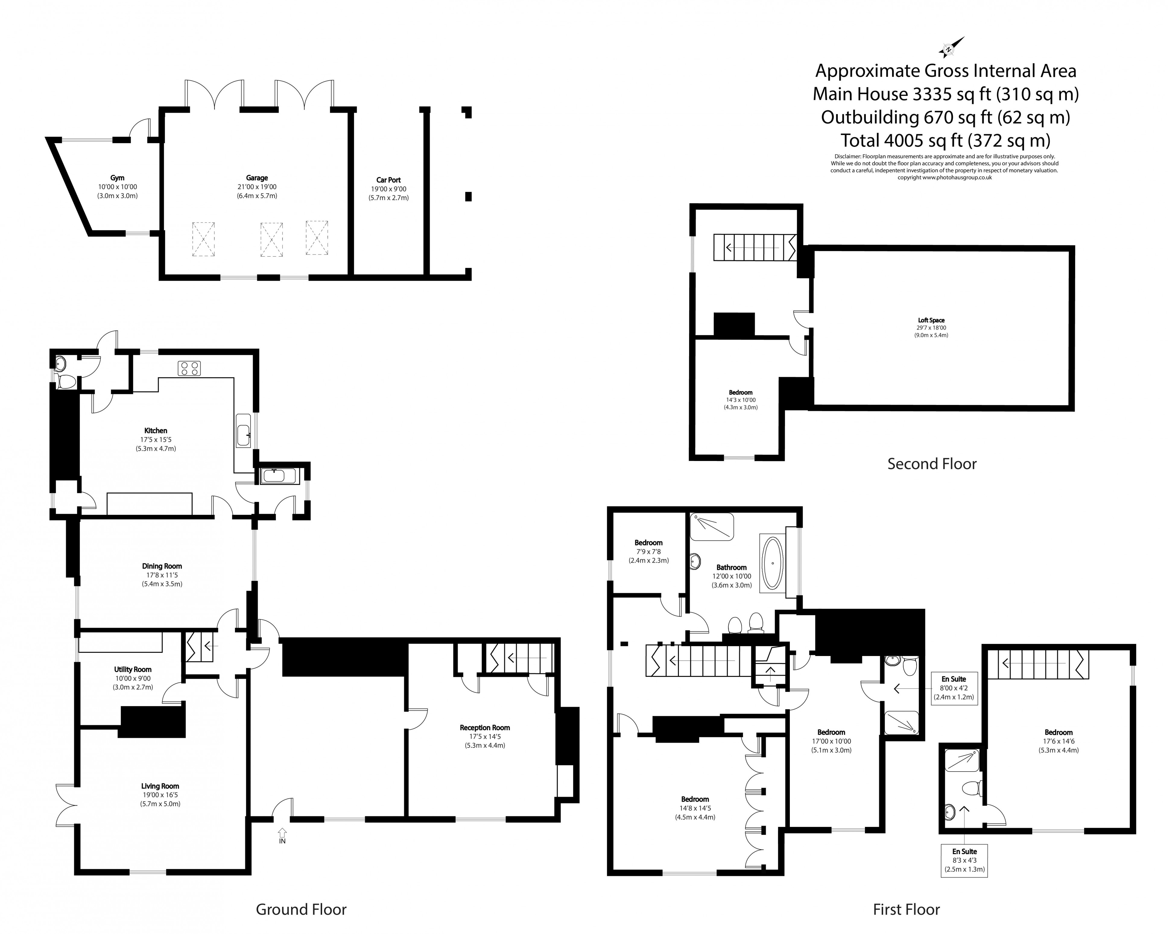
Unfurnished Grade II listed detached farm house situated in Wellstyle Green within close proximity to Barnston. The property provides approximately 4,005 sq ft of accommodation in total, comprising the main house and a range of outbuildings.

The ground floor is arranged to include a living room, a separate reception room, a kitchen, and a dining room. The kitchen is positioned adjacent to the dining room, allowing for direct access between the two spaces. Additional ground floor accommodation includes a utility room and a cloakroom.

The first floor comprises five bedrooms, two of which are served by en-suite shower rooms, together with a family bathroom accessed from the landing. Bedrooms are arranged off a central landing, providing access to all first-floor accommodation.

The second floor includes a further room and loft space, which may be used for a variety of purposes such as storage, home working, or recreational use.

Externally, the property benefits have a large, mature, private rear garden alongside a garage, car port, and a separate space, previously used as a gym.

The combined internal area of the main house is approximately 3,335 sq ft, with the outbuildings providing an additional 670 sq ft.

EPC Band E. For more information, please contact Mullucks Lettings

Additional Information
Council Tax Band:
G