House Under Offer with 3 bedrooms in Wicken Bonhunt, Nr Saffron Walden, Essex

Guide Price

£495,000 | Under Offer

3 bedroom House Under Offer

Book a Viewing Request Details
or call 01799 520520
Share
Property Description

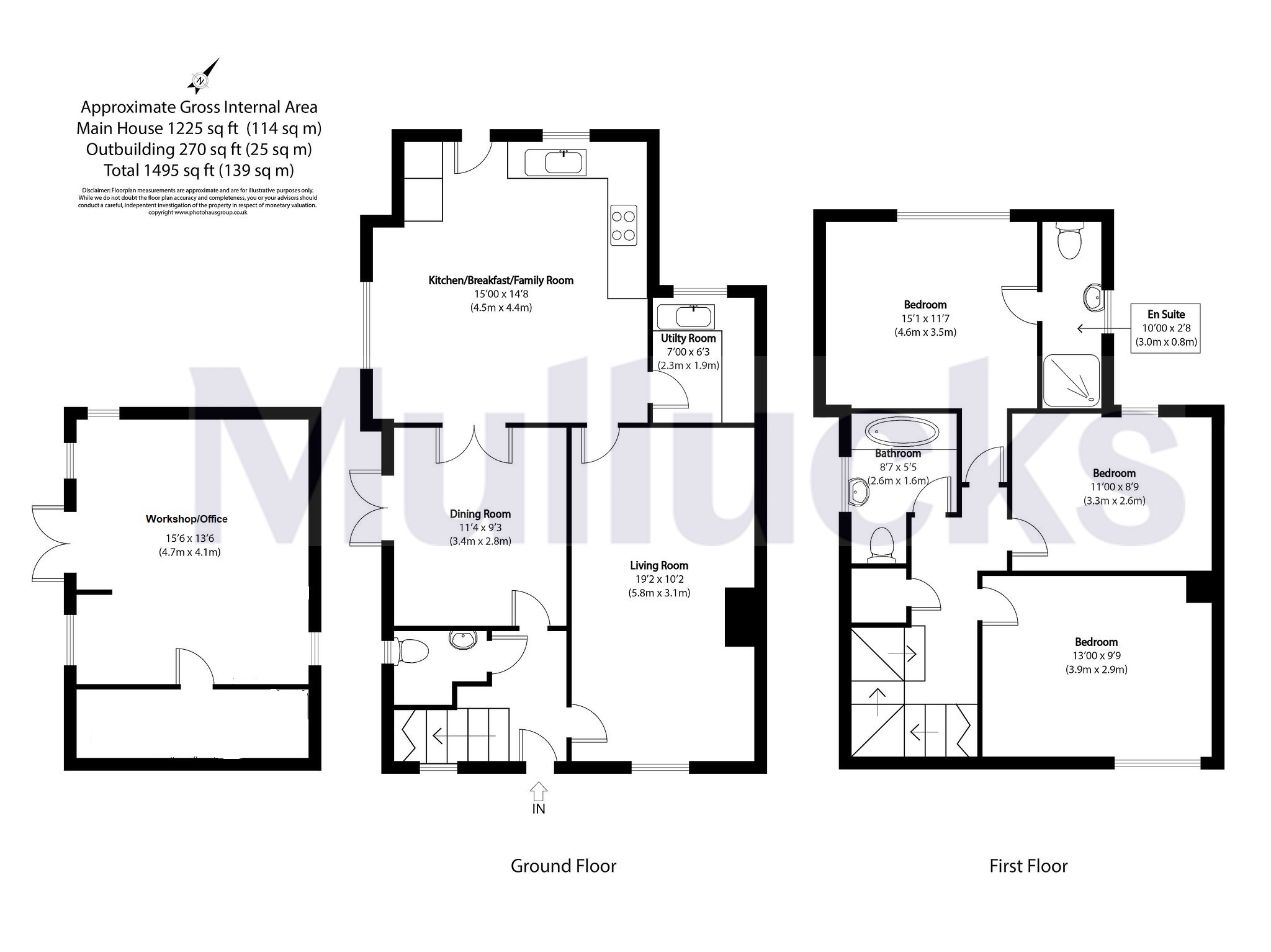
11 THE MEADS is an established semi detached family home, having been much improved and enlarged over the years to now provide well proportioned and versatile living accommodation. Viewing highly recommended to appreciate the house and workshop/office.

The property offers many attributes inside and out with its front door opening an entrance hall where stairs rise to the first floor and a ground floor cloakroom sits off to one side. The principal sitting room has a double glazed window looking out to the front and a fireplace, with a second reception room providing family or dining area with double glazed double doors to the side drawing in good amounts of natural light and glazed double doors opening to the kitchen/breakfast room. The kitchen itself is a good sized area incorporating plenty of space for table and chairs and containing an array of storage cupboards, complemented by worktops, built-in oven and gas hob with extractor fan over. There is a double glazed window to both the side and rear with personal door leading to outside. An adjacent utility room provides further worktops and storage cupboards with additional space for further appliances.

Upstairs, the first floor landing leads to the 3 good sized bedrooms, with the master having the benefit of its own en suite shower room, this being in addition to the principal family bathroom which contains a 3-piece suite.

OUTSIDE, a particularly impressive feature of the property is the plot in which its sits, set back from the road and well screened by mature hedgerow with its front garden being laid out mainly to lawn with a pathway to the front door. Extending alongside the property is a large paved terrace which provides ideal space for outside entertaining being sheltered and well screened. The gardens to the rear combine areas of lawn and patio paving interspersed with pea-shingled pathways, a variety of well established plants and shrubs all around. There is an extensive area of parking to the rear of the garden and a useful timber garden shed which is in addition to a larger timber framed workshop/office which is insulated and could serve a variety of purposes.

Additional Information
Tenure:
Freehold
Council Tax Band:
C
Standout Features
Mortgage calculator
years
%

Calculate Your Stamp Duty
£
Results
Stamp Duty To Pay:
Effective Rate:
Tax Band % Taxable Sum Tax
Standout Features