Flat for sale with 2 bedrooms in Station Road, Harlow, Essex

£295,000 | Available

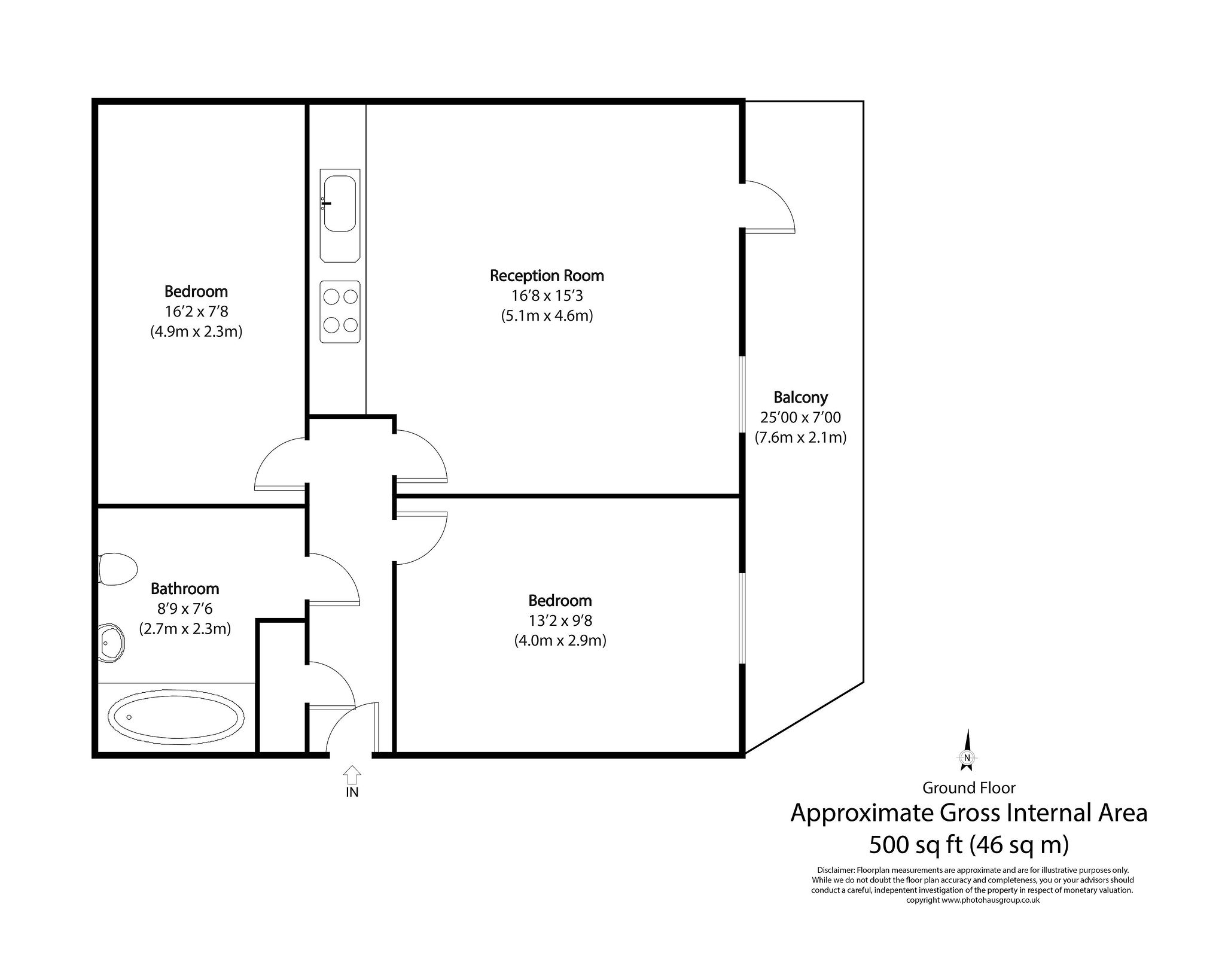
2 bedroom Flat for sale in Harlow

Book a Viewing Request Details
or call
Share
Property Description

Positioned in the very heart of historic Old Harlow, this stunning new development offers a choice of five one-bedroom and three two-bedroom apartments, each thoughtfully designed to blend contemporary living with timeless character.

These brand-new homes boast generous high ceilings and light-filled interiors, with layouts ranging from 538 sq ft to 695 sq ft, while the impressive top-floor apartment spans over 1,000 sq ft.

The kitchens are finished to a modern, high specification, featuring integrated appliances and sleek design—perfect for entertaining or everyday living. Several apartments enjoy private outdoor space, with garden areas on the ground floor and balconies to the upper floors, providing the ideal setting to unwind.

Practicality is matched with convenience: each apartment comes with allocated parking, and residents are within easy walking distance of local shops, doctors, dentists, restaurants, and welcoming pubs. Harlow Mill train station is also just a short walk away, offering excellent transport links into London and beyond.

With no ground rent charges, long 250-year leases, and service charges estimated at £1,400 per annum for one-bedroom homes and £1,600 per annum for two-bedroom homes, these apartments offer both quality and peace of mind.

Available to move into immediately, this exclusive collection is available by appointment only.

Please Note:
Plots 2&3 have outside terraces.
Plots 4,7 & 8 have balconies.

Some of the pictures and floorplans have been used from other apartments to give an overview of the finish and layout across all plots available.

Contact Mullucks Old Harlow today on 01279 418888 to arrange your viewing.

Additional Information
Tenure:
Leasehold
Lease Years Remaining:
249
Standout Features
Mortgage calculator
years
%

Calculate Your Stamp Duty
£
Results
Stamp Duty To Pay:
Effective Rate:
Tax Band % Taxable Sum Tax
Standout Features