for sale in Nr Saffron Walden CB10 1UB | Mullucks in Little Chesterford, Nr Saffron Walden, Essex

Guide Price

£700,000 | Available

Property for sale in Nr Saffron Walden

Book a Viewing Request Details
or call 01799 520520
Share
Property Description

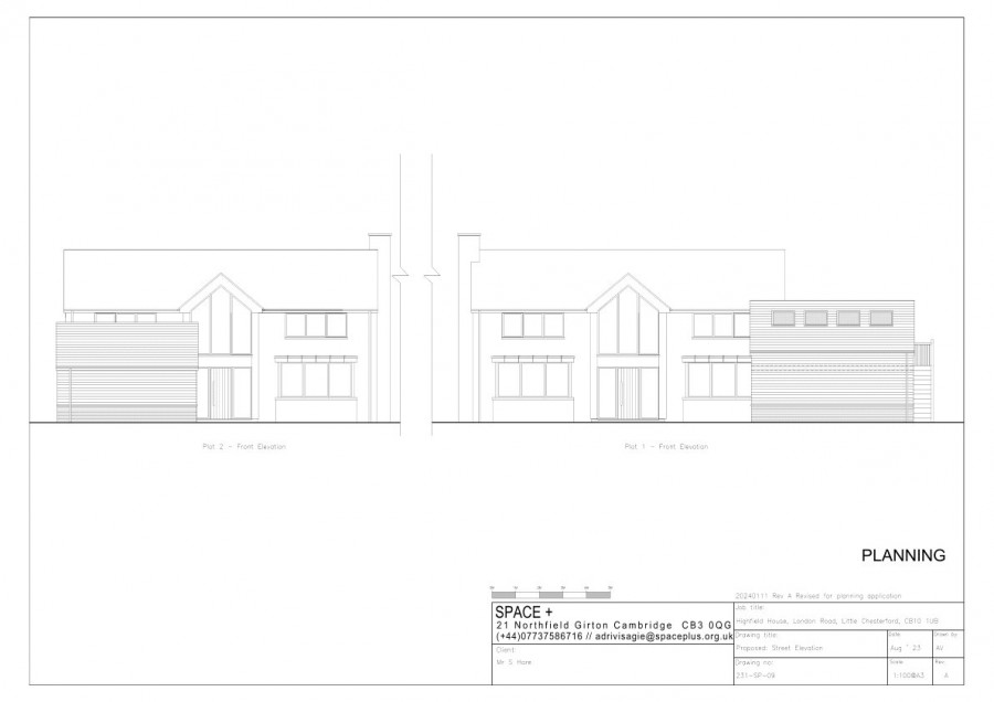
An exceptional opportunity for developers or self-build clients to acquire a beautifully positioned 0.7 of an acre development plot set behind Highfield House on London Road, Little Chesterford - a highly sought after and popular Essex village.

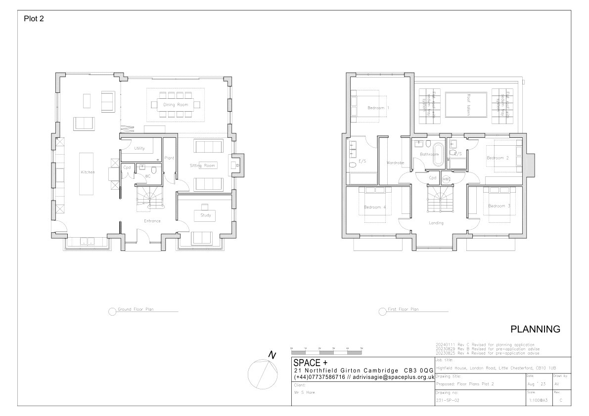
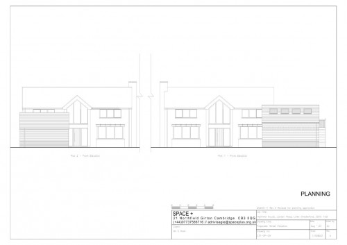
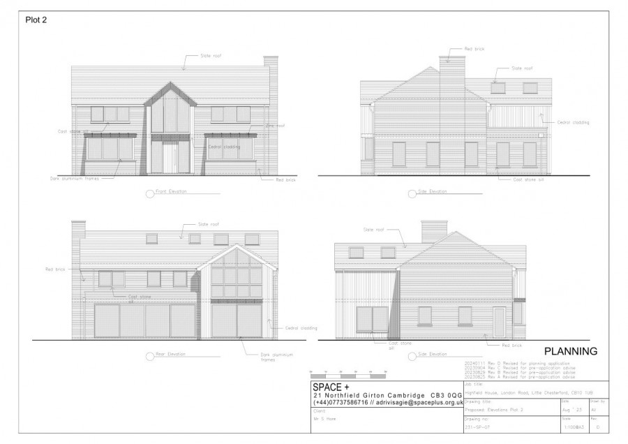
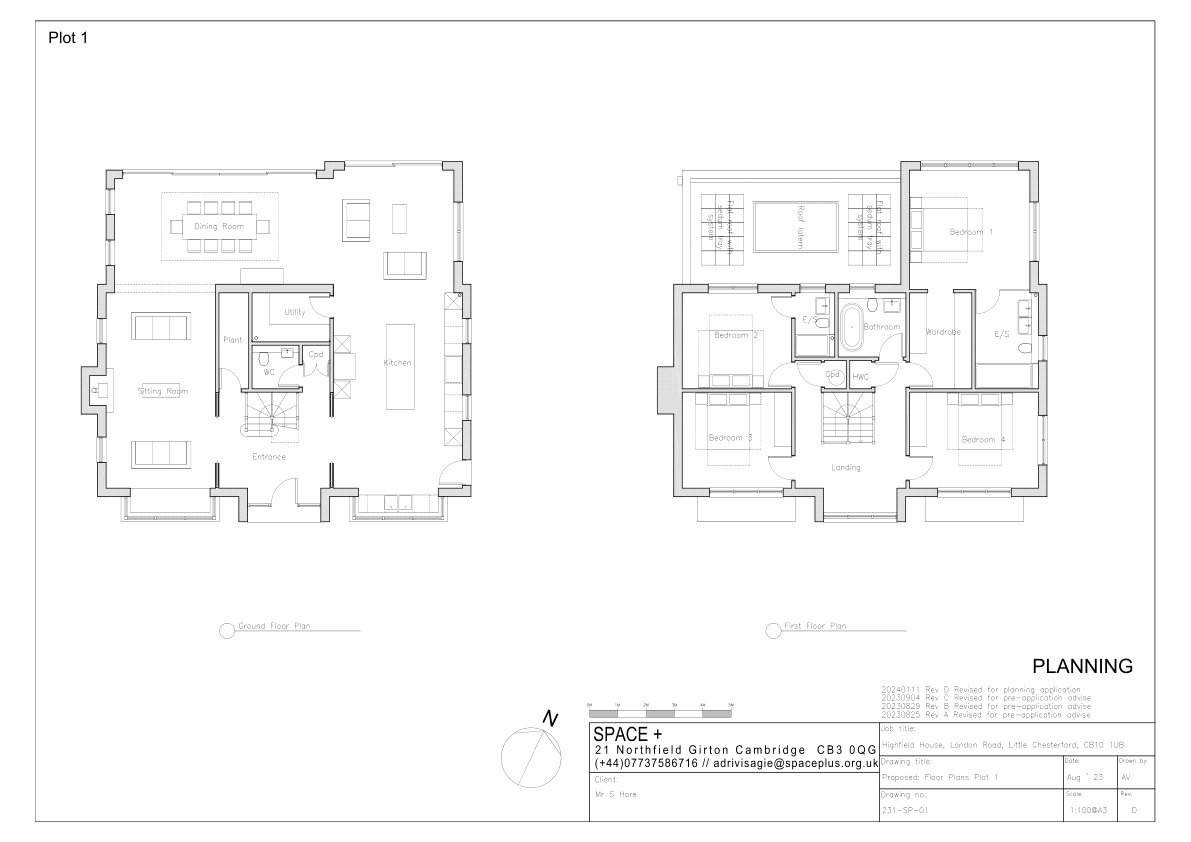
The site benefits from full planning permission (UTT/24/0356/FUL) for the construction of two impressive and contemporary detached houses each offering approximately 250 sqmts of well designed accommodation. The scheme includes the creation of a new dedicated access to the land via an existing southern entrance of Highfield House, with the approved part demolition of the current garage to integrate a new private driveway.

Both plots have been thoughtfully designed to offer generous gardens and excellent privacy. Plot 1 will enjoy a total plot of approx. 940 sqmts, whilst plot 2 will be approx. 570 sqmts.

The proposed homes will incorporate modern, energy efficient features including air source heat pump, private drainage and provisions for mains water and electricity connected.

The development plot is surrounded by open countryside offering a peaceful setting, whilst remaining extremely well connected. Little Chesterford is a desirable village situated just minutes from Chesterford Research Park and is within easy access to Saffron Walden, Cambridge and London via nearby fast rail and road links.

Standout Features
Mortgage calculator
years
%

Calculate Your Stamp Duty
£
Results
Stamp Duty To Pay:
Effective Rate:
Tax Band % Taxable Sum Tax
Standout Features