House to let with 5 bedrooms in Elmdon, Saffron Walden, Essex

£4,250 PCM | Available

5 bedroom House to let in Saffron Walden

Book a Viewing
or call 01279 653067
Share
Property Description

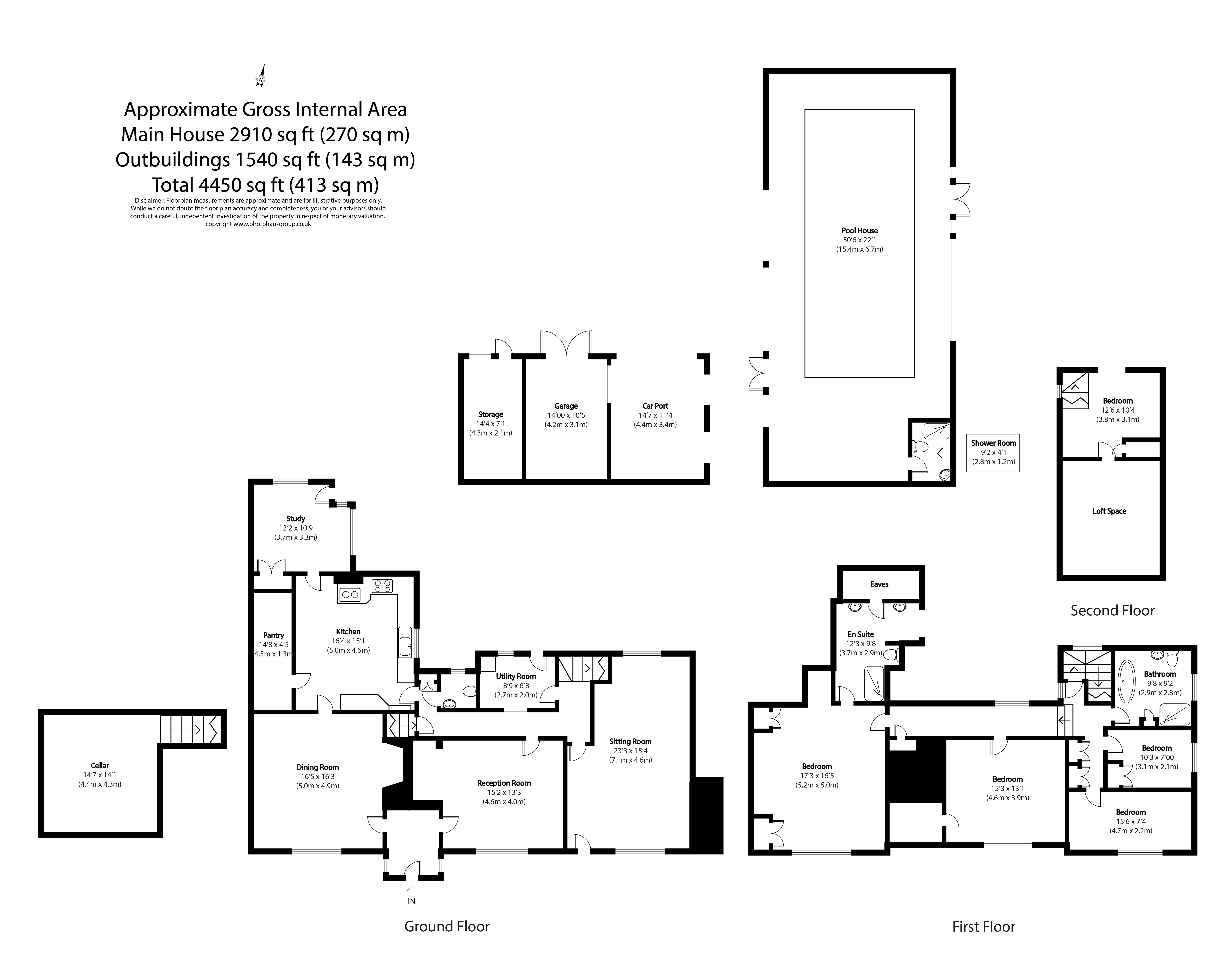
Unfurnished or part-furnished 4–5 bedroom charming Grade II listed detached family home located in the picturesque village of Elmdon.

The ground floor features a welcoming entrance hallway leading to a formal dining room and two elegant reception rooms, including a large sitting room with garden views. To the rear, the spacious kitchen and adjoining pantry provide ample storage and workspace, complemented by a study and utility room.

Upstairs, the first floor offers a generous principal bedroom with en suite, three further bedrooms (two doubles and one single), and a stylish family bathroom. The second floor includes an additional bedroom and loft space, ideal for a home office or guest suite.

Externally, the property enjoys an impressive rear garden with a luxurious indoor pool house featuring a heated pool and shower room. Additional outbuildings include a garage, carport, and storage space, providing excellent versatility.

Driveway parking is available for multiple vehicles. EPC Band Awaiting.

For more information, please contact Mullucks Lettings.

Additional Information
Council Tax Band:
G