House to let with 5 bedrooms in Bury Water Lane, Newport, Saffron Walden, Essex

£3,000 PCM | Available

5 bedroom House to let in Newport, Saffron Walden, Essex

Book a Viewing
or call 01279 653067
Share
Property Description

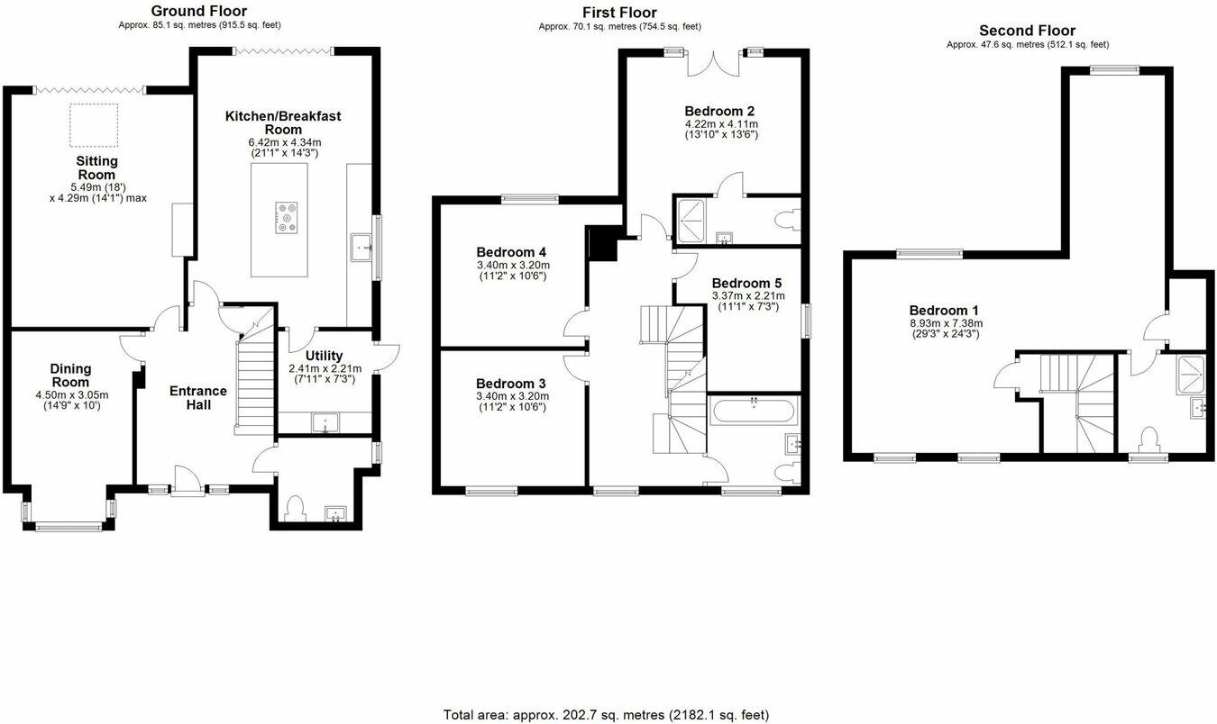
Unfurnished 5-bedroom detached family home located in the sought-after village of Newport with direct rail links to London Liverpool Street and Cambridge. Within easy reach of Saffron Walden (3 miles), Stansted Airport and major road connections (M11/M25).

The property is set over three floors and comprises a welcoming entrance hall, ground floor cloakroom, family room/home office with bay window, spacious main reception room with feature fireplace and bi-fold doors to the rear garden, and a modern fitted kitchen/breakfast room with central island, integrated appliances and bi-fold doors to the garden. A separate utility room gives access to the side of the property.

The first floor offers a guest bedroom with en-suite, three further bedrooms and a stylish family bathroom. The second floor provides the principal bedroom with an en-suite shower room.

Additionally, the property benefits from a private driveway and garage. EPC Band B. For more information, please contact Mullucks.

Additional Information
Council Tax Band:
G